• Fertighaus-Bausatz.de
  • INFOS

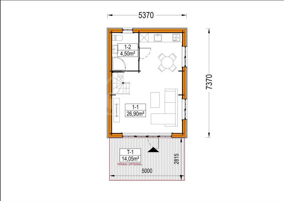
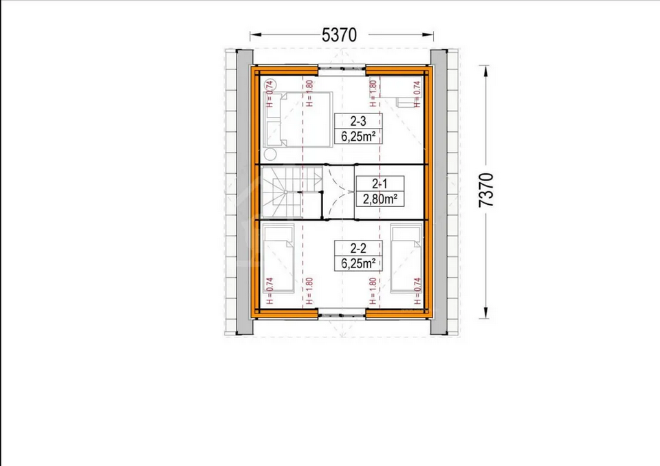
HAUS 021 / 46 m²

Bestellformular
Copyright © Alle Rechte vorbehalten.
Share by: